DE
Alcúdia | REF: T-289

Rustikale Finca mit Meer- und Bergblick zu verkaufen in Alcudia, Mallorca

295,000 €

870752 T-289 Von der Favoriten entfernen Zu den Favoriten hinzufügen

Objektbeschreibung

Ländliche Finca in der Gegend von Alcudia, sehr gut kommuniziert, mit einfachem Zugang und spektakulärem Blick auf die Berge und das Meer.

Das Grundstück hat 14.200 qm, Wasser von ACASA und Stromzähler auf nur 300 Meter.
Es ist mit dem grundlegenden Projekt verkauft bezahlt und an das Rathaus von Alcudia vorgestellt.

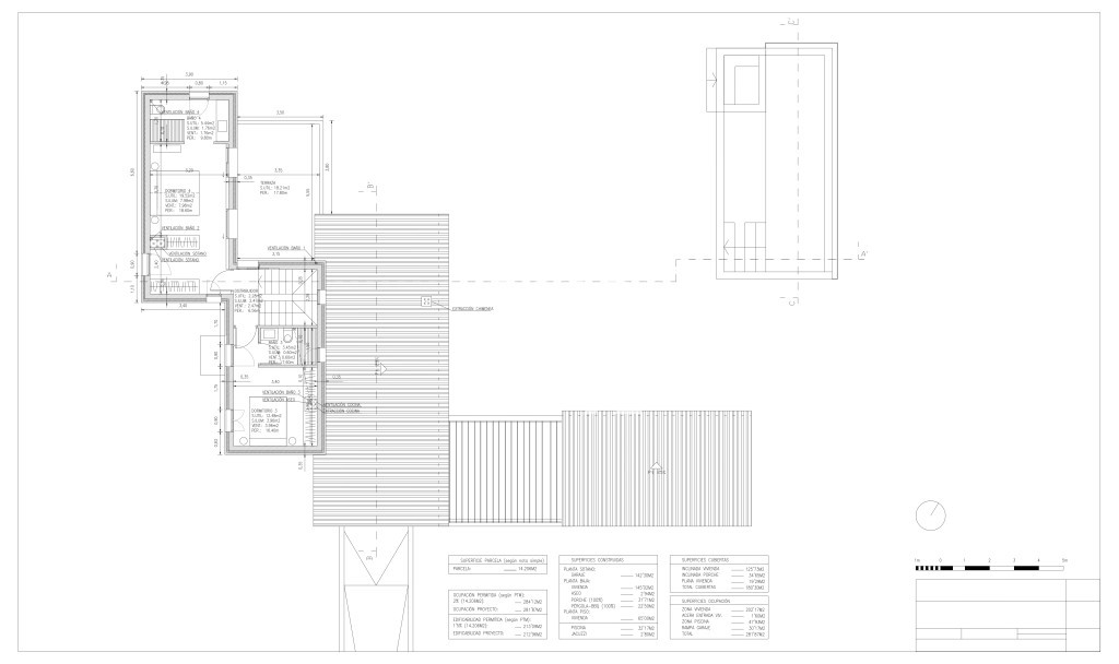
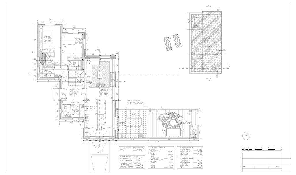
Das Projekt Haus wird in drei Etagen aufgeteilt werden. Im Erdgeschoss befinden sich zwei Doppelschlafzimmer mit eigenem Bad, eine offene Küche mit Zugang zum Wohn-/Esszimmer, eine Toilette und eine Waschküche. Von der Küche aus hat man Zugang zur Pergola mit Grillplatz, Veranda und Toilette sowie zum Garten mit 32 m2 großem Swimmingpool mit Jacuzzi.
Im ersten Stock befinden sich zwei Doppelschlafzimmer, beide mit eigenem Bad en-suite. Das Hauptschlafzimmer wird auch einen Ankleideraum und Zugang zu einer privaten Terrasse von 18m2 haben.

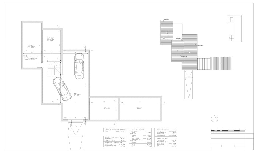
Im Untergeschoss des Hauses gibt es eine geräumige Garage von 70m2, einen Maschinenraum, einen Müllraum und die Wasserzisterne Bereiche.

Lage und Umgebung:

Alcudia ist eine Stadt an der nordöstlichen Küste Mallorcas. Sie ist ein beliebter Ort, der für seine schönen Strände mit kristallklarem Wasser, seine historische Altstadt und seine lebendige Atmosphäre bekannt ist. Die Stadt bietet ein breites Spektrum an Aktivitäten und Attraktionen, darunter Wassersport, archäologische Stätten und eine Vielzahl von Restaurants und Geschäften. Die mittelalterliche Stadtmauer, die die Stadt umgibt, ist ein Zeugnis ihrer Vergangenheit, und die Erkundung der engen Gassen der Altstadt ist wie eine Reise in die Vergangenheit.
Alcudia ist ein Reiseziel, das natürliche Schönheit, historischen Charme und eine pulsierende Atmosphäre miteinander verbindet und somit eine beliebte Wahl für alle ist, die ein abwechslungsreiches und unvergessliches Erlebnis suchen.

Hauptmerkmale

  • Mit Bauvorhaben
  • Meerblick
  • Swimmingpool
  • Garage
  • Terrasse
  • Veranda
  • Hauswirtschaftsraum
  • Grill
  • Whirlpool

Media

734-22 alçats para publicar_page-0001
734-22 plantes para publicar_page-0001
734-22 alçats para publicar_page-0002
734-22 plantes para publicar_page-0002
734-22 plantes para publicar_page-0003
734-22 situació - para publicar en la web_page-0001

Standort der Immobilie Location

Energieeffizienzklasse

Steht aus
 
Energieverbrauch
Emissionen
A
 
 
B
 
 
C
 
 
D
 
 
E
 
 
F
 
 
G
 
 
Energieverbrauch kW h/m² jahr
Emissionen kg CO2/m² jahr

Mehr Informationen anfordern

Ahnliche Eigenschaften

We use cookies to ensure you get the best experience on our website Accept cookies Mehr Information