DE
Alcúdia | REF: T-299

Rustikales Grundstück mit Basisprojekt und Lizenz für den Bau eines Hauses mit Schwimmbad und Meerblick zu verkaufen in Alcudia, Mallorca

1,600,000 €

870902 T-299 Von der Favoriten entfernen Zu den Favoriten hinzufügen

Objektbeschreibung

Ausgezeichnetes ländliches Grundstück auf halbem Weg zwischen Alcudia und Puerto de Alcudia.

Das Grundstück wird mit einem Basisprojekt und einer Baugenehmigung für den Bau eines Privathauses im typisch mallorquinischen Stil und einem offenen Innenraum mit allem modernen Komfort verkauft.
Das Grundstück befindet sich am Ende einer Sackgasse. Einer der Vorteile ist die absolute Ruhe und Privatsphäre. Da es hoch oben an einem Berghang liegt, bietet es einen hervorragenden Blick auf die Bucht von Pollensa und viel natürliches Licht und Raum.

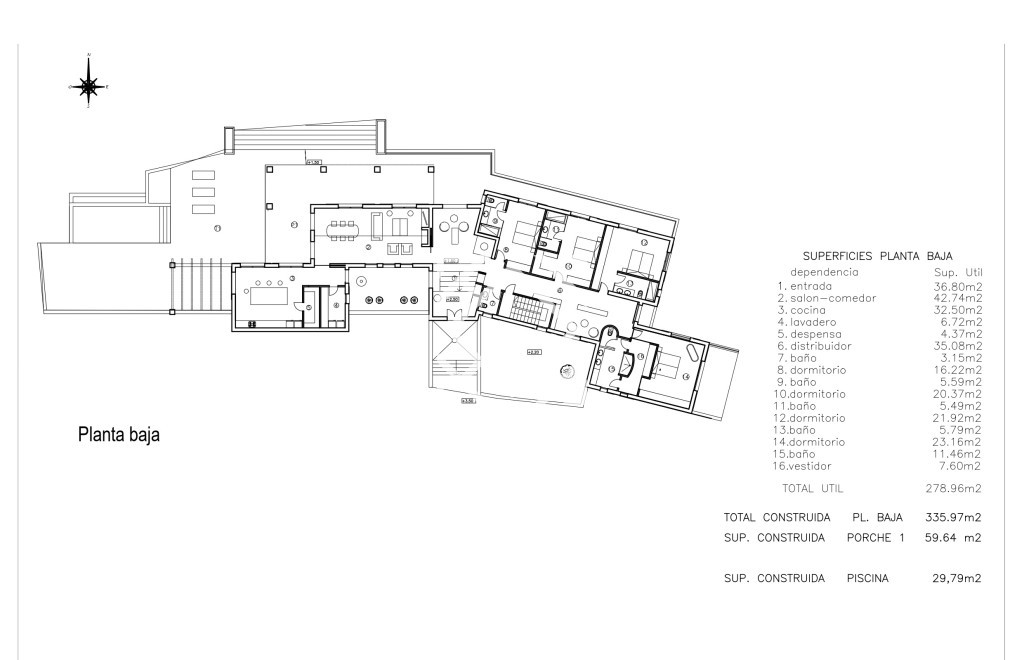
Das entworfene Haus hat eine große Fassade, die teilweise mit Stein verkleidet ist. Das Haus hat eine bebaute Fläche von 621 m2 plus Veranden und Terrassen. Es ist in zwei Etagen aufgeteilt: Untergeschoss und Hauptgeschoss. Das Untergeschoss hat eine bebaute Fläche von 285 m2 und umfasst eine Garage, einen Fitnessraum, einen Abstellraum, einen Maschinenraum und eine Toilette. Das Hauptgeschoss mit einer Fläche von 335 m2 verfügt über eine beeindruckende Eingangshalle mit dem Wohn-/Esszimmer auf der linken Seite und dem Küchenbereich mit Hauswirtschaftsraum und Speisekammer. Rechts vom Eingang befinden sich eine große Halle und die vier geräumigen Schlafzimmer mit vier Bädern en-suite sowie ein Gäste-WC.
Im Außenbereich gibt es eine schattige überdachte Terrasse und sonnige Bereiche rund um den Pool.

Die Immobilie befindet sich in einer privilegierten Lage, nur 5 Autominuten von der Altstadt von Alcudia und dem schönen weißen Sandstrand von Puerto de Alcudia entfernt. Der Golfplatz Alcanada und andere Attraktionen wie Bonaire, Barcarés, Manresa und das Stadtzentrum von Puerto de Alcudia mit seinen Bars, Restaurants und Geschäften sind ganz in der Nähe.

Lage und Umgebung:

Alcudia ist eine Stadt an der nordöstlichen Küste Mallorcas. Sie ist ein beliebter Ort, der für seine schönen Strände mit kristallklarem Wasser, seine historische Altstadt und seine lebendige Atmosphäre bekannt ist. Die Stadt bietet ein breites Spektrum an Aktivitäten und Attraktionen, darunter Wassersport, archäologische Stätten und eine Vielzahl von Restaurants und Geschäften. Die mittelalterliche Stadtmauer, die die Stadt umgibt, ist ein Zeugnis ihrer Vergangenheit, und die Erkundung der engen Gassen der Altstadt ist wie eine Reise in die Vergangenheit.
Alcudia ist ein Reiseziel, das natürliche Schönheit, historischen Charme und eine pulsierende Atmosphäre miteinander verbindet und somit eine beliebte Wahl für alle ist, die ein abwechslungsreiches und unvergessliches Erlebnis suchen.

Hauptmerkmale

  • Mit Bauvorhaben
  • Vorratskammer
  • Garage
  • Fitnessraum
  • Hauswirtschaftsraum
  • Swimmingpool
  • Veranda
  • Abstellraum
  • Ausblick auf Garten und Pool
  • Meerblick
  • Anwesen mit viel Prestige
  • Malerischer Garten
  • Garten
  • Mit Baugenehmigung

Media

PROYECTO BÁSICO Y RENDERS_page-0002
PROYECTO BÁSICO Y RENDERS_page-0003
PROYECTO BÁSICO Y RENDERS_page-0004
PROYECTO BÁSICO Y RENDERS_page-0005
PROYECTO BÁSICO Y RENDERS_page-0006
PROYECTO BÁSICO Y RENDERS_page-0007

Standort der Immobilie Location

Energieeffizienzklasse

Steht aus
 
Energieverbrauch
Emissionen
A
 
 
B
 
 
C
 
 
D
 
 
E
 
 
F
 
 
G
 
 
Energieverbrauch kW h/m² jahr
Emissionen kg CO2/m² jahr

Mehr Informationen anfordern

Ahnliche Eigenschaften

We use cookies to ensure you get the best experience on our website Accept cookies Mehr Information