DE
Pollença | REF: T-331

Exklusive Finca Rústica zum Verkauf mit Projekt für ein Einfamilienhaus und Schwimmbad in Pollensa, im Norden Mallorcas.

1,165,000 €

916865 T-331 Von der Favoriten entfernen Zu den Favoriten hinzufügen

Objektbeschreibung

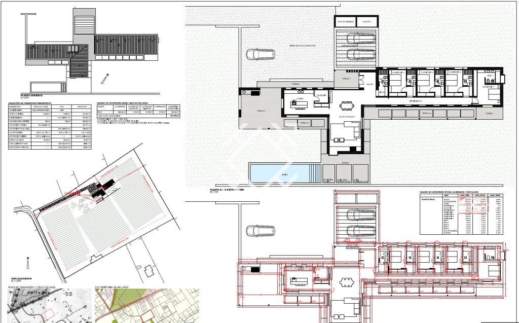
Wir bieten Ihnen die einmalige Gelegenheit, eine spektakuläre Finca am ruhigen Stadtrand von Pollensa zu erwerben, nur wenige Minuten vom charmanten historischen Zentrum entfernt und umgeben von einem atemberaubenden Bergblick. Diese Immobilie verfügt über ein großes Grundstück von ca. 24.445 m² und wird mit einem genehmigten Projekt für den Bau eines eleganten, freistehenden Hauses mit Swimmingpool verkauft, wobei die Baugenehmigung derzeit vom Rathaus von Pollensa bearbeitet wird.

Das Projekt für das Haupthaus sieht eine bebaute Gesamtfläche von 264 m² vor, die sich auf eine Etage verteilt, um Komfort und Zugänglichkeit zu gewährleisten. Um den mediterranen Lebensstil genießen zu können, wird die Immobilie über eine Eingangshalle, ein geräumiges Wohn-Esszimmer mit offener Küche, einen separaten Hauswirtschaftsraum und einen Flur verfügen, der zu vier Doppelschlafzimmern führt, die jeweils über ein eigenes Bad verfügen und somit maximalen Komfort und Privatsphäre garantieren. Darüber hinaus verfügt das Haus über eine Garage mit Platz für zwei Autos.

Der Außenbereich des Hauses ist so gestaltet, dass das sonnige Klima Mallorcas optimal genutzt werden kann, mit großzügigen Veranden, mehreren Terrassen und einer Pergola, die ideal zum Entspannen oder zur Unterhaltung von Gästen ist. Zum Projekt gehören auch ein exquisit angelegter Garten und ein Swimmingpool mit einem 34 m² großen Wasserspiegel, der eine private Oase schafft, in der man den Sommer genießen kann. Die Finca verfügt über einen eigenen Brunnen für die Wasserversorgung und ist an das Stromnetz angeschlossen, was der Immobilie einen praktischen und nachhaltigen Wert verleiht. Auf dem Grundstück befindet sich außerdem ein altes Gebäude, das für die landwirtschaftliche Nutzung erhalten werden kann.

Lage und Umgebung:

Pollensa ist einer der wertvollsten Schätze im Norden Mallorcas, bekannt für seine reiche Geschichte, seinen traditionellen Charme und die Nähe zu einigen der schönsten Strände der Insel. Diese malerische mallorquinische Stadt mit 15.000 Einwohnern bietet eine einzigartige Mischung aus Kultur, Gastronomie und Natur. Von der berühmten Calvario-Besteigung mit ihren 365 Steinstufen, die in einer Kirche aus dem 18. Jahrhundert und einem Panoramablick auf die Stadt gipfeln, bis hin zur lebhaften Plaza Mayor mit ihrer imposanten Pfarrkirche aus dem 17. Jahrhundert gibt es in Pollensa viele Ecken und Winkel zu entdecken.

Die Umgebung von Pollensa bietet nicht nur traumhafte Strände wie Cala San Vicente und Puerto Pollensa, sondern auch Rad- und Wanderwege durch einige der atemberaubendsten Landschaften der Insel. Diese privilegierte Lage macht diese Finca zu einer idealen Wahl für alle, die einen ruhigen Rückzugsort suchen, ohne auf die Annehmlichkeiten und das pulsierende gesellschaftliche Leben von Pollensa verzichten zu müssen.

Nutzen Sie diese unglaubliche Investitionsmöglichkeit in einer der begehrtesten Gegenden im Norden Mallorcas und bauen Sie Ihr Traumhaus in einer unvergleichlichen Umgebung. Verpassen Sie nicht diese Gelegenheit, Ihr Projekt im mallorquinischen Paradies zu verwirklichen!

Hauptmerkmale

  • Brunnenwasser
  • Ganzjährig zugänglich
  • 5-10 Minuten zum Golfplatz
  • Geräumige Unterkunft
  • Gute Verkehrsanbindung
  • In Schulnähe
  • Mit Bauvorhaben
  • Platz für einen Pool
  • Anwesen mit viel Prestige
  • Anlageimmobilie
  • Bevorzugte Lage

Media

Standort der Immobilie Location

Energieeffizienzklasse

Steht aus
 
Energieverbrauch
Emissionen
A
 
 
B
 
 
C
 
 
D
 
 
E
 
 
F
 
 
G
 
 
Energieverbrauch kW h/m² jahr
Emissionen kg CO2/m² jahr

Mehr Informationen anfordern

Ahnliche Eigenschaften

We use cookies to ensure you get the best experience on our website Accept cookies Mehr Information