ES
Es Trenc | REF: P-954

Apartamento en planta baja a estrenar en venta cerca de Es Trenc, Mallorca

729.000 €

869737 P-954 Eliminar de favoritos Añadir a favoritos

Descripción de la propiedad

Nueva promoción de 69 apartamentos a la venta junto a Es Trenc, Mallorca. Se trata de un moderno y exclusivo complejo de nueve edificios. Plantas bajas con jardín y áticos con acceso directo a terrazas en azotea.

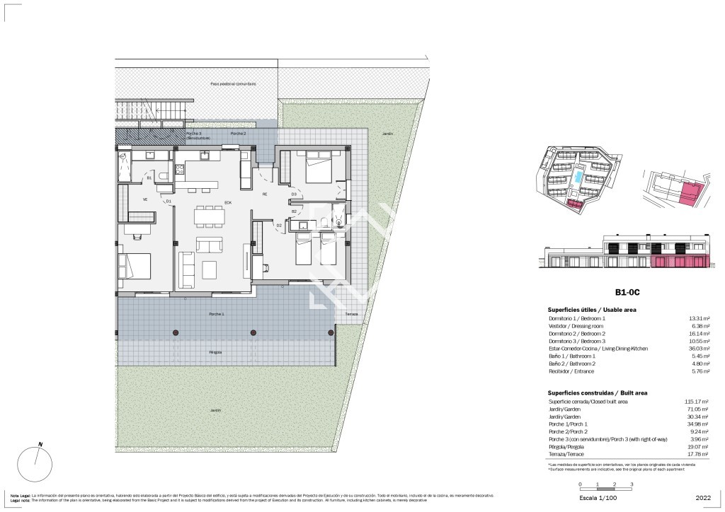
Apartamentos en planta baja a estrenar muy cerca de Es Trenc desde 729.000€. Tiene una superficie construida de 115,17 m2 y se distribuye en una cocina bien equipada, un salón-comedor muy amplio, tres dormitorios dobles, dos baños (de los cuales uno en suite), un vestidor, una terraza y tres porches. La propiedad se beneficia de aire acondicionado (frío + calor) y calefacción por suelo radiante en los baños. El apartamento tiene una plaza de aparcamiento asignada y un trastero.


Ubicación y alrededores:

Situada en el exclusivo entorno de Es Trenc, esta propiedad se encuentra en uno de los enclaves más codiciados del sur de Mallorca. Reconocida por su impresionante playa de aguas cristalinas y arena blanca, Es Trenc ofrece un ambiente paradisíaco y protegido, ideal para quienes buscan tranquilidad y conexión con la naturaleza.

Los alrededores cuentan con una reserva natural de humedales, donde se pueden avistar aves migratorias y disfrutar de rutas de senderismo. A pocos minutos en coche, encontrarás el encantador pueblo de Campos, que combina servicios modernos con el encanto tradicional mallorquín, así como una excelente oferta gastronómica y mercados locales.

Es Trenc es el lugar perfecto para quienes buscan un equilibrio entre privacidad, belleza natural y acceso a servicios de calidad.

Características de la propiedad

  • Aire Acondicionado Frio/Calor
  • Baños con suelo radiante
  • Garaje
  • Jardín Comunitario
  • Piscina Comunitaria
  • Terraza
  • Zona tranquila
  • Zona de prestigio
  • Zona Residencial
  • Zona apta para turismo
  • Ventanas Climalit
  • Jardin de fácil mantenimiento
  • Excelentes Condiciones

Media

Lageplan - julio 2023
Planos de los apartamenos disponibles-para publicar_page-0001
Planos de los apartamenos disponibles-para publicar_page-0002
Planos de los apartamenos disponibles-para publicar_page-0006
Planos de los apartamenos disponibles-para publicar_page-0003
Planos de los apartamenos disponibles-para publicar_page-0008
Planos de los apartamenos disponibles-para publicar_page-0007
Planos de los apartamenos disponibles-para publicar_page-0009
Planos de los apartamenos disponibles-para publicar_page-0014

Localización Location

Calificación eficiencia energética

Pendiente
 
Consumo
Emisiones
A
 
 
B
 
 
C
 
 
D
 
 
E
 
 
F
 
 
G
 
 
Consumo energia kW h/m² año
Emisiones kg CO2/m² año

Solicite más información

Propiedades Similares

Utilizamos cookies propias y de terceros para mejorar nuestros servicios Aceptar cookies Más Información