ES
Puerto de Alcúdia | REF: C-624

Nueva promoción de viviendas adosadas con jardín y piscina en Puerto de Alcudia, Mallorca

590.000 €

869984 C-624 Eliminar de favoritos Añadir a favoritos

Descripción de la propiedad

SOLO DOS UNIDADES DISPONIBLES !

Nueva promoción de viviendas adosadas con jardín privado y piscina comunitaria en Puerto de Alcudia.

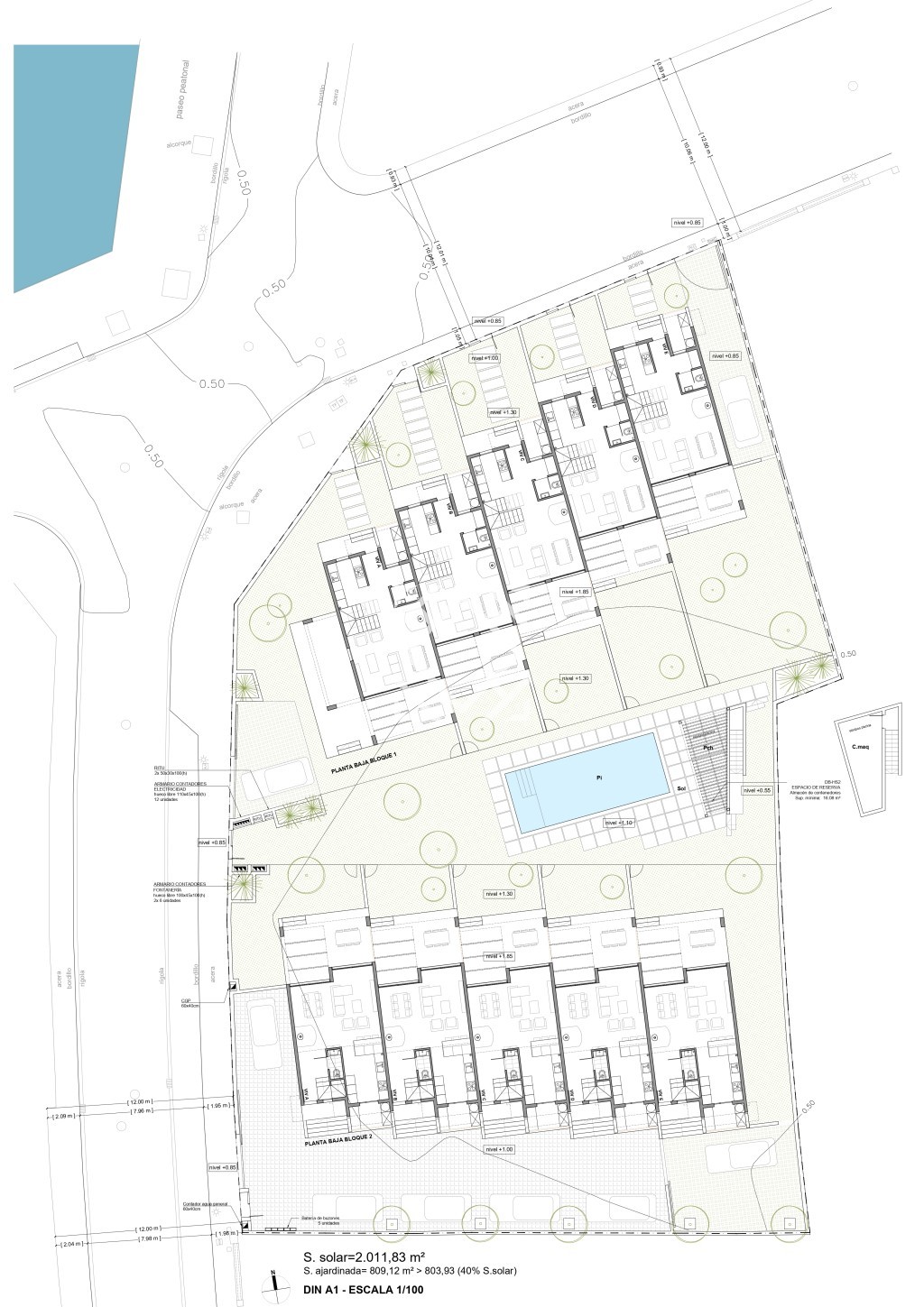
Este complejo de diez viviendas está situado en la zona del Lago Menor, a tan sólo 800 metros de la playa de Alcudia. Es un lugar ideal para vivir todo el año y disfrutar de unas estupendas vacaciones en familia.

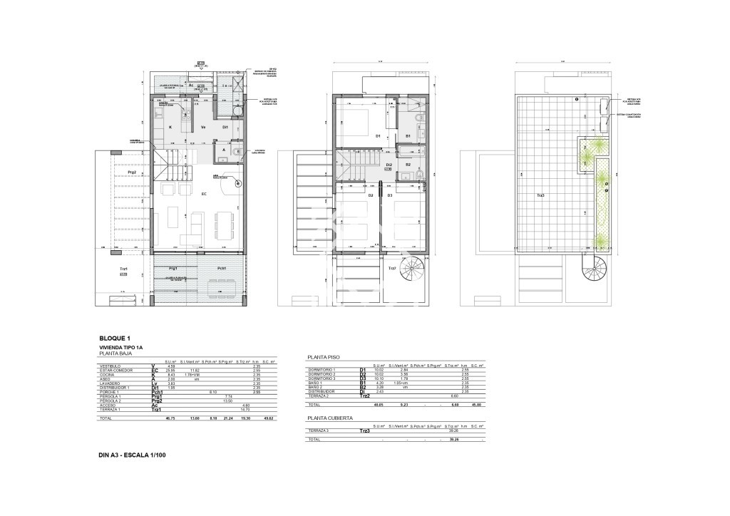
Las viviendas tienen una superficie aproximada de 95 m2. Disponen de tres dormitorios, dos baños completos (uno en suite), un aseo, cocina sin amueblar. Cada vivienda tendrá un porche de unos 8 m2 en la planta baja y una pérgola de unos 21 m2. Cada porche tendrá acceso directo al jardín privado y a la zona comunitaria de piscina y solárium. Desde la primera planta habrá una escalera de caracol que conduce a una espaciosa azotea de aproximadamente 40 m2.

Las viviendas estarán equipadas con aire acondicionado con bomba de calor en todas las habitaciones.

Los precios de los chalets adosados que siguen disponibles:

BLOQUE 1:

D: €590,000


BLOQUE 2:

C: €575,000
D: €570,000


El proyecto está actualmente en proceso de construcción y está previsto que las obras acaben antes de final de 2025.


Ubicación y alrededores:

Puerto de Alcudia, ubicado en la costa norte de Mallorca, ofrece hermosas playas de arena blanca y aguas cristalinas, tradiciones locales y un entorno natural excepcional. Con fácil acceso a lugares destacados como el Parque Natural de s'Albufera y la ciudad histórica de Alcudia, con sus calles empedradas y su encanto medieval, este encantador puerto es ideal para disfrutar de la vida costera y explorar la rica cultura de la isla.

La ubicación del puerto es estratégica, ya que se encuentra en una bahía protegida que ofrece aguas tranquilas y seguras para la navegación. La playa más famosa es la Playa de Alcudia, que se extiende a lo largo de varios kilómetros y ofrece una amplia gama de servicios y actividades para los visitantes. Además, Puerto de Alcudia cuenta con todas las comodidades necesarias para la vida diaria, como escuelas, hospitales, supermercados y una amplia variedad de tiendas y restaurantes.

Características de la propiedad

  • Jardín Comunitario
  • Piscina Comunitaria
  • Lavadero
  • Cocina Americana
  • Cocina Completamente Equipada
  • Terraza
  • Azotea
  • Porche
  • Aire Acondicionado Frio/Calor
  • Portero Electronico
  • Desagüe/alcantarillado
  • Vestidor

Media

BLOQUE 1_ALZ I - copia_page-0001
BLOQUE 1_ALZ I_page-0001
BLOQUE 1_ALZ II_page-0001
BLOQUE 1_VIV TIPO 1A_page-0001
BLOQUE 1_VIV TIPO 1B_page-0001
BLOQUE 2_VIV TIPO 2A_page-0001
CONJUNTO PLANTA BAJA_A1 - para publicar_page-0001

Localización Location

Calificación eficiencia energética

Pendiente
 
Consumo
Emisiones
A
 
 
B
 
 
C
 
 
D
 
 
E
 
 
F
 
 
G
 
 
Consumo energia kW h/m² año
Emisiones kg CO2/m² año

Solicite más información

Propiedades Similares

Utilizamos cookies propias y de terceros para mejorar nuestros servicios Aceptar cookies Más Información