ES
Alcúdia | REF: C-761

Oportunidad única: vivienda con encanto para reformar en el centro de Alcudia, Mallorca

655.000 €

932567 C-761 Eliminar de favoritos Añadir a favoritos

Descripción de la propiedad

Exclusiva propiedad en venta en el corazón histórico de Alcudia

Situada en una de las calles más emblemáticas del casco antiguo de Alcudia, esta extraordinaria propiedad representa una oportunidad de inversión única en uno de los enclaves más prestigiosos y con mayor valor patrimonial de Mallorca.

Con más de 300 m² construidos y acceso desde dos calles, esta residencia ofrece una base inmejorable para desarrollar un proyecto exclusivo, ya sea como vivienda privada de alto standing o como iniciativa boutique que combine elegancia contemporánea con el encanto tradicional mallorquín.

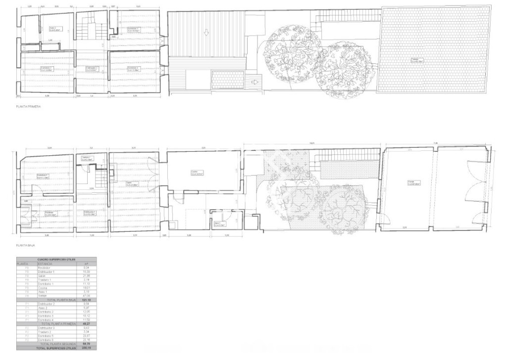
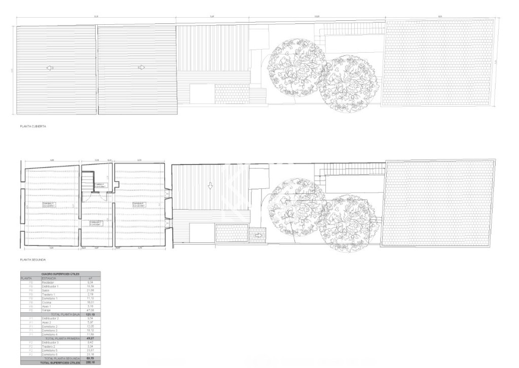
El inmueble requiere una reforma integral, pero destaca por su sólida estructura y generosas dimensiones. Cuenta con seis amplios dormitorios, dos baños completos, un encantador patio interior, una terraza luminosa y un garaje con capacidad para dos vehículos, un verdadero privilegio en esta codiciada zona.

Su amplitud y distribución ofrecen un sinfín de posibilidades de diseño: desde una residencia de lujo con piscina privada hasta un exclusivo alojamiento con carácter y estilo, todo ello enmarcado por la autenticidad de una construcción con historia.

Ubicada en un entorno vibrante, rodeado por murallas medievales, galerías de arte, gastronomía local y tiendas con encanto, la propiedad se encuentra a solo minutos de las mejores playas del norte de Mallorca y con excelente conexión a Palma y al aeropuerto internacional.

Una inversión con un altísimo potencial de revalorización, ideal para quienes buscan un proyecto distinguido en una de las zonas más solicitadas de la isla. Propiedades con estas características y ubicación son auténticas rarezas en el mercado actual.

Contáctenos para más información sobre esta oportunidad irrepetible.


Localización y alrededores:

Alcudia, auténtica joya del norte de Mallorca, encarna la fusión perfecta entre legado histórico, belleza natural y exclusividad. Su majestuoso casco antiguo, custodiado por imponentes murallas medievales, revela un entramado de elegantes calles empedradas, plazas señoriales y una exquisita oferta cultural y gastronómica. A escasa distancia, la bahía despliega sus aguas cristalinas y playas de ensueño, ofreciendo un entorno idílico para el descanso y el bienestar.

Su selecto mercado inmobiliario la posiciona como un destino codiciado tanto por quienes buscan una residencia con carácter como por inversores con visión de futuro. Alcudia no es solo un lugar para vivir, sino un escenario donde la calidad de vida alcanza su máxima expresión.

Características de la propiedad

  • Agua municipal
  • Accesibilidad todo el año
  • Ajardinado
  • Amplio alojamiento
  • Doble acceso
  • Propiedad de inversión
  • Patio Interior
  • Jardín pintoresco
  • Espacio para Piscina
  • Casa ideal para una familia
  • Terreno plano
  • Corta distancia a pie centro
  • Corta distancia a los cafés
  • Corta distancia a pie tiendas
  • Corta distancia a pie de rest.
  • Garaje
  • Parking
  • Comedor con Chimenea
  • Chimenea abierta

Media

Plano Alzados
Plano Distribución Plantas
Plano Cubiertas Plantas

Localización Location

Calificación eficiencia energética

Pendiente
 
Consumo
Emisiones
A
 
 
B
 
 
C
 
 
D
 
 
E
 
 
F
 
 
G
 
 
Consumo energia kW h/m² año
Emisiones kg CO2/m² año

Solicite más información

Propiedades Similares

Utilizamos cookies propias y de terceros para mejorar nuestros servicios Aceptar cookies Más Información